345 Sugarview RoadSugar Hill, GA 30518
Due to the health concerns created by Coronavirus we are offering personal 1-1 online video walkthough tours where possible.




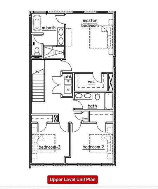
Discover the perfect fusion of luxury and leisure at Skyview on Broad, nestled in the heart of Downtown Sugar Hill. Kittle Homes,a 2 time Obie award recipient proudly presents a stunning new collection of three-story luxury townhomes, thoughtfully designed to complement your lifestyle. Entertain with ease in this expansive floorplan. Kitchen features sleek hood vented to the exterior, quartz countertops, designer backsplash, apron front sink and Bosch Appliances. Kitchen access to private deck from kitchen area. This open floorplan has an open-concept dining area and fireside family room with linear fireplace and tiles to ceiling for that transitional look that is perfect for everyday use or for entertaining. Owner's ensuite features freestanding tub, separate shower with frameless shower door with tiles to the ceiling, and double vanity. Two feature walls add class and charm to the home. The all-brick exteriors throughout the community evoke a sense of timeless luxury that will make anyone proud to call this home. Gas lanterns grace your front door to add charm and chic! Don’t miss this opportunity to be part of one of Sugar Hill’s most luxurious new construction communities where modern living meets hometown charm. Just outside your door, immerse yourself in the dynamic yet charming atmosphere of Sugar Hill’s walkable Downtown. Explore an array of shops, restaurants, and entertainment options, all within reach. Year-round festivals and community celebrations bring the neighborhood to life, making it a welcoming and vibrant place for all ages. A community Dog Park is there for your pooch to run around and enjoy outdoors. PICTURES ARE NOT INDICATIVE OF THE FLOORPLAN, BUT ARE REPRESENATIVE OF FINISHES. PICTURES ARE OF A DIFFERENT FLOORPLAN. Projected completion date FALL 2025.
| 4 weeks ago | Listing first seen on site | |
| 4 weeks ago | Listing updated with changes from the MLS® |
Listings identified with the FMLS IDX logo come from FMLS and are held by brokerage firms other than the owner of this website and the listing brokerage is identified in any listing details. Information is deemed reliable but is not guaranteed. If you believe any FMLS listing contains material that infringes your copyrighted work, please click here to review our DMCA policy and learn how to submit a takedown request.
© 2017-2025 First Multiple Listing Service, Inc.

Did you know? You can invite friends and family to your search. They can join your search, rate and discuss listings with you.